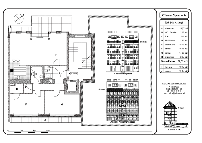
KUNDMANNGASSE 12

Top 14 - Grundriss

<< Zur Übersicht

Druck - und Downloadversionen: