Menü
Menü
Navigation überspringen
Kundmanngasse 12
Umfeld
Ausstattung
Übersicht Tops
Mieter sagen
Historisches
Bildergalerie
Wir über uns
Architekt
Datenschutz
Kontakt / Impressum
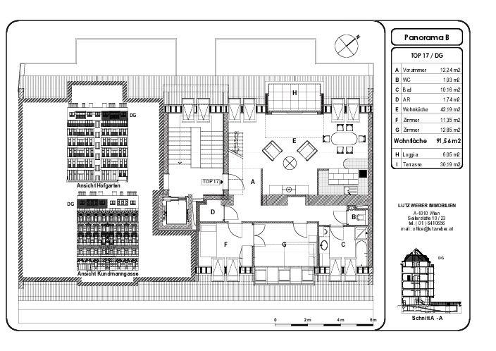
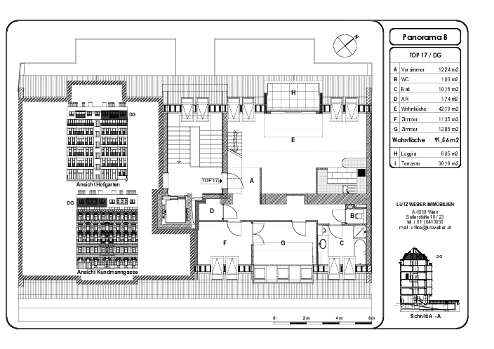
KUNDMANNGASSE 12
Top 17 - Grundriss
<< Zur Übersicht
Druck - und Downloadversionen:
top_17-oe.pdf
top_17.pdf